物件詳細
物件詳細
駒込医療モール計画
おすすめポイント
東京都文京区本駒込6丁目25-5
この物件の詳細情報
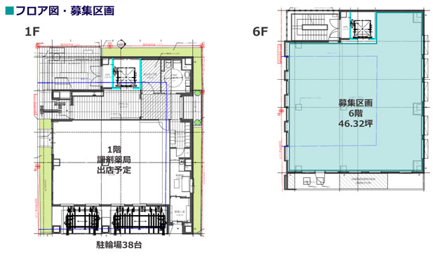
| 階数・区画 | 面積 | 賃料 | 管理費 | 保証金・敷金 | 礼金 | 契約期間 |
|---|---|---|---|---|---|---|
| 1階 調剤薬局出店予定 |
||||||
| 6階 | 46.32坪 | 19,235円/坪(税込) | 賃料に含む | 保証金:賃料の6ヶ月分 | 定期借家:15年 |


物件の詳細情報提供、診療圏情報の提供、物件見学の調整など、様々なサービスも併せてご提供いたします。
その際、下記の「No.」か「物件名」でお問い合わせいただくとスムーズです。
診療圏調査サービス無料
「診療圏調査」サービスでは、単に紙媒体だけの資料をご提供するだけではなく、どのように資料を読み込めば良いのか及び、 資料に掲載されていない情報も併せて無料で面談によるコンサルタントをしております。

この物件について
問い合わせる