株式会社アプト医院開業navi

医院・クリニック開業、医師の開業支援は株式会社アプト|開業場所の選定や開業資金の調達、スタッフ採用、集患対策などトータルでサポートいたします。

サービス

物件詳細

物件詳細

No.1142

 KITAIKE TERRACE(北池テラス)

おすすめポイント

  • ○2020年4月末竣工の新築ビル

    ○整形外科、内科、歯科が開業済

    ○心療内科・精神科は5階のみの募集

    ○近隣に小学校あり
  • 募集科目
    小児科 眼科 皮膚科 耳鼻科 心療内科 産科・婦人科 泌尿器科
  • 物件種別
    医療モール ビルテナント 
  • 住所

    東京都豊島区上池袋4丁目29-9

  • アクセス
    東武東上線『北池袋』駅 徒歩2分
    JR埼京線『板橋』駅 徒歩7分

この物件の詳細情報

  • 建築構造
    鉄筋コンクリート造
  • 竣工時期
    2020年4月末竣工
  • 条件
    ・契約形態:普通借家契約
    ・引渡:スケルトン
    ※警備費用:各テナント5,000円/月(別途徴収)
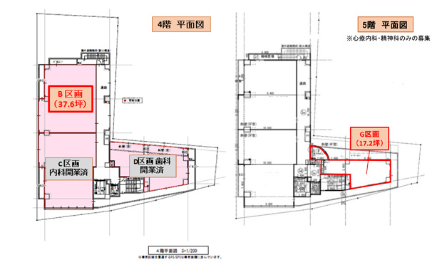
    ※5階G区画は2022年3月以降入居可能
階数・区画 面積 賃料 管理費 保証金・敷金 礼金 契約期間
5階G 17.2坪 17,140円/坪(税込) 賃料に含む 6ヶ月分 4ヶ月分 20年
4階B 37.6坪 15,958円/坪(税込) 賃料に含む 6ヶ月分 4ヶ月分 20年
4階C
内科
4階D
歯科
1階
調剤薬局
B1階/2階
整形外科
この物件について
問い合わせる

物件の詳細情報提供、診療圏情報の提供、物件見学の調整など、様々なサービスも併せてご提供いたします。
その際、下記の「No.」か「物件名」でお問い合わせいただくとスムーズです。

診療圏調査サービス無料

「診療圏調査」サービスでは、単に紙媒体だけの資料をご提供するだけではなく、どのように資料を読み込めば良いのか及び、 資料に掲載されていない情報も併せて無料で面談によるコンサルタントをしております。

詳しくみる

この物件について
問い合わせる

問い合わせ物件

  • ID:1142

    物件名:KITAIKE TERRACE(北池テラス)

電話番号(携帯可)必須

--

E-mail必須※半角英数

※PCもしくは携帯メールアドレスのいずれかを必ずご記入ください。携帯の場合は apto-m.co.jp のドメイン解除をお願い致します。

予定標榜科目必須

その他